2292
338
444
1.st1
2.st

Mājas projekts Arhipro 1-206

Array

Projekta īss apraksts

Guļamistabas: 3 Platība: 196 m² Garāža: nav


Email

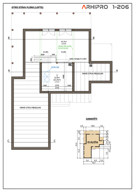
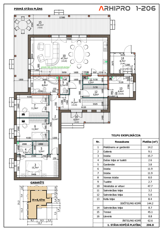
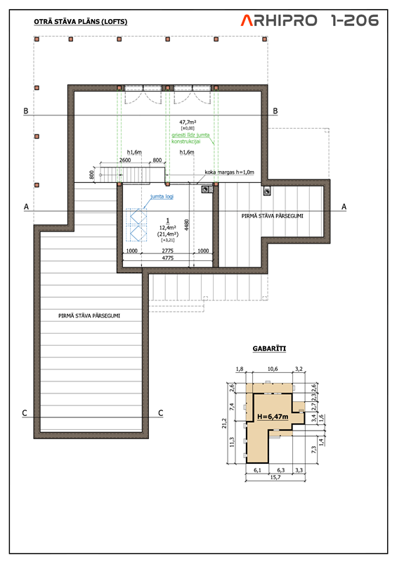
Vienstāvīga ģimenes māja ar plašu segtu terasi (45,1m²) un vaļēju loftu. Mājas dizains ieturēts klasiskā stilā - paļaujoties uz dabīgo koksnes burvību un uzticoties tās pārbaudītajai izturībai, tai pat laikā pielietojot mūsdienīgus apdares materiālus un risinājumus, lai māja būtu efektīva arī ilgtermiņā. Mājā ir ieplānota ļoti plaša viesistaba apvienota ar virtuvi (47,7m²), šajā zonā paredzēti augstie griesti līdz jumta konstrukcijai (Hmax=5,43m), kas šo telpu padarīs telpiski ļoti brīvu un atvērtu moderniem interjera risinājumiem. Pārējā mājas daļā griestu augstums 2,80m. Daļēji virs pirmā stāva pārsegumiem paredzēts izbūvēt vaļēju loftu, ko var brīvi izmantot pēc saviem uzskatiem, vai arī perspektīvē izbūvēt pilnvērtīgu mansarda stāvu. Pārējās telpas – trīs guļamistabas (saimnieku guļamistabā atsevišķa vannas istaba un garderobe), garderobe, vannas istaba ar tualeti, rezerves tualete viesiem, kā arī saimniecības telpa virtuves vajadzībām un katlu telpa ar atsevišķu ieeju. Katlu telpai paredzēta atseviķa slēgta nojume kurināmā uzglabāšanai.

Iekštelpu platība – 156,6m²
Kopējā platība – 219,2m²

KONSTRUKTĪVĀS ĪPAŠĪBAS:
•Pamati – lentveida, no monolīta dz/b.
•Ēkas ārsienas – koka karkass aizpildīts ar minerālvati 300mm, ar gaisa vēdināmo šķirkārtu un apšūts ar apdares dēļiem - vertikāli.
•Ēkas norobežojošās starpsienas – koka karkass aizpildīts ar minerālvati 100/180mm.
•Logi – pakešu logi koka vai PVC rāmjos ar trīskārša stiklojuma paketi.
•Pārsegumi – koka karkass, aizpildīts ar minerālvati.
•Jumta konstrukcija – koka karkass, aizpildīts ar minerālvati . 
•Jumta segums – metāla valcprofils vai profilētās metāla loksnes Ruukki Classic.

Norādītajā tipveida projekta cenā ir iekļauta būvprojekta dokumentācija, kas sevī ietver ARHITEKTŪRAS (AR) sadaļu un BŪVKONSTRUKCIJU (BK) sadaļu. Papildus tam būs nepieciešams izstrādāt ĢENERĀLPLĀNU (ĢP) jeb piesaistīt māju pie zemes gabala, kas ir individuāls pakalpojums katram pasūtījumam. Jāņem vērā arī saistītie izdevumi ar inženiertehnisko izpēti zemes gabalam (topogrāfija, ģeoloģija), iespējamie pieslēgumi centralizētajiem inženierkomunikāciju tīkliem (ELT, UKT, GAT) un citi iespējamie izdevumi, kas katrā īpašumā var būt atšķirīgi. Lai noskaidrotu saistītās izmaksas lūgums sazināties ar arhitektu - tel. 201 44 444


+371 20144444

info@arhipro.lv
Adrese: Nākotnes iela 2,
Ķekava, Ķekavas nov., LV-2123
© 2025 All Rights Reserved. Arhipro