23
334
474
572
617
75
1.st5657

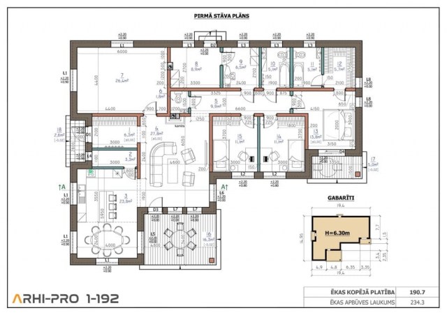
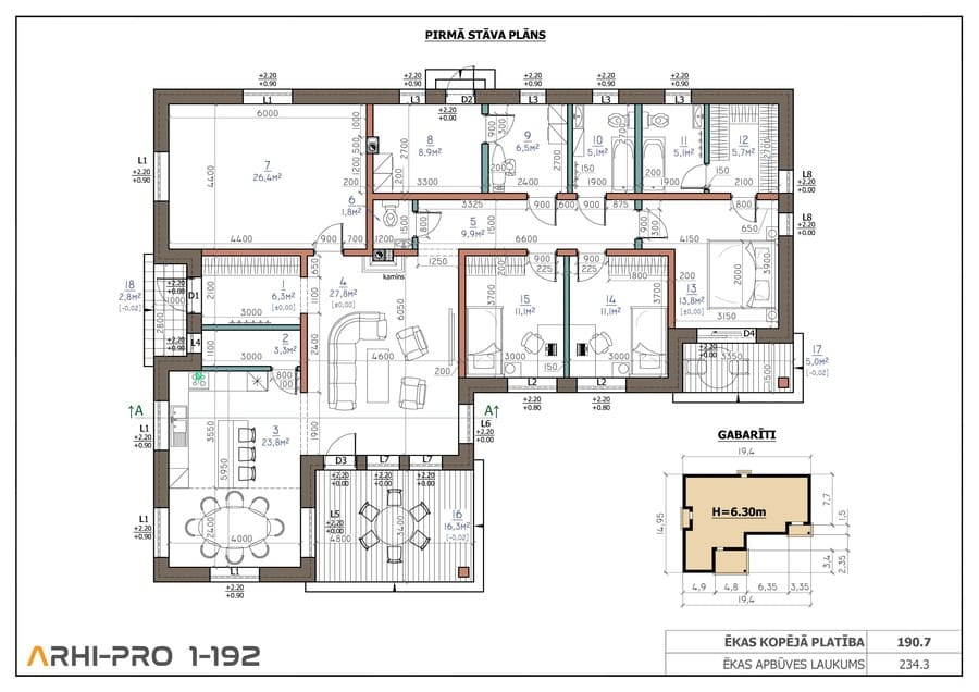
Mājas projekts Arhipro 1-192

Array

Projekta īss apraksts

Guļamistabas: 3 Platība: 192 m² Garāža: nav


Email

KONSTRUKTĪVĀS ĪPAŠĪBAS:

  • Pamati – lentveida, no monolīta dz/b uz monolītas dz/b pēdas.

  • Ēkas ārsienas – gāzbetona mūris BAUROC EcoTerm+ 300mm (300kg/m³). Ārsienas papildus siltinātas ar fasāžu cieto minerālvati PAROC Linio 150mm.

  • Ēkas norobežojošās starpsienas - gāzbetona mūris BAUROC Acoustic 100/150mm, ar pazeminātu akustisko caurlaidību.

  • Logi – pakešu logi koka vai PVC rāmjos ar trīskārša stiklojuma paketi.

  • Pārsegumi – koka siju karkass, aizpildīts ar minerālvati.

  • Jumta konstrukcija – koka spāru karkass.

  • Jumta segums – metāla profilētās loksnes RUUKKI Classic.

  • Apkure – siltumsūknis gaiss-ūdens, ar iebūvētām siltajām grīdām.

Norādītajā tipveida projekta cenā ir iekļauta būvprojekta dokumentācija, kas sevī ietver ARHITEKTŪRAS (AR) sadaļu un BŪVKONSTRUKCIJU (BK) sadaļu. Papildus tam būs nepieciešams izstrādāt ĢENERĀLPLĀNU (ĢP) jeb piesaistīt māju pie zemes gabala, kas ir individuāls pakalpojums katram pasūtījumam. Jāņem vērā arī saistītie izdevumi ar inženiertehnisko izpēti zemes gabalam (topogrāfija, ģeoloģija), iespējamie pieslēgumi centralizētajiem inženierkomunikāciju tīkliem (ELT, UKT, GAT) un citi iespējamie izdevumi, kas katrā īpašumā var būt atšķirīgi. Lai noskaidrotu saistītās izmaksas lūgums sazināties ar arhitektu - tel. 201 44 444

Adrese: Nākotnes iela 2,
Ķekava, Ķekavas nov., LV-2123
© 2026 All Rights Reserved. Arhipro