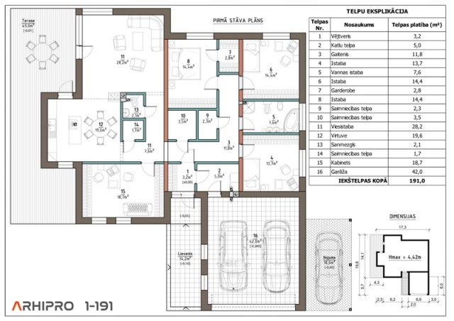
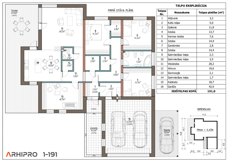
Guļamistabas: 4 Platība: 191 m² Garāža: ir
Plaša vienstāvīga ģimenes māja ar plašu viesistabu apvienotu ar virtuvi, kā arī trijām guļamistabām un kabinetu.
Mājai ieplānota garāža divām automašīnām un nojume vienai automašīnai kā arī plaša terase.
Iekštelpu platība - 191,0m²
Kopējā platība - 272,2m²
KONSTRUKTĪVĀS ĪPAŠĪBAS:
•Pamati – lentveida, no monolīta dzelzsbetona.
•Ēkas ārsienas – gāzbetona 375mm siltinātas ar minerālvati 50mm, un apšūtas ar fibrocementa loksnēm.
•Ēkas norobežojošās starpsienas – gāzbetona 250mm un koka vai metāla karkass apšūts ar reģipsi 150mm.
•Logi – pakešu logi koka / alumīnija rāmjos ar trīskārša stiklojuma paketi.
•Pārsegumi – koka karkass, aizpildīts ar minerālvati
•Jumta konstrukcija – koka karkass.
•Jumta segums – bitumena ruļļmateriāli.
Norādītajā tipveida projekta cenā ir iekļauta būvprojekta dokumentācija, kas sevī ietver ARHITEKTŪRAS (AR) sadaļu un BŪVKONSTRUKCIJU (BK) sadaļu. Papildus tam būs nepieciešams izstrādāt ĢENERĀLPLĀNU (ĢP) jeb piesaistīt māju pie zemes gabala, kas ir individuāls pakalpojums katram pasūtījumam. Jāņem vērā arī saistītie izdevumi ar inženiertehnisko izpēti zemes gabalam (topogrāfija, ģeoloģija), iespējamie pieslēgumi centralizētajiem inženierkomunikāciju tīkliem (ELT, UKT, GAT) un citi iespējamie izdevumi, kas katrā īpašumā var būt atšķirīgi. Lai noskaidrotu saistītās izmaksas lūgums sazināties ar arhitektu - tel. 201 44 444