35
41
58
1.st99

Mājas projekts Arhipro 1-176

Array

Projekta īss apraksts

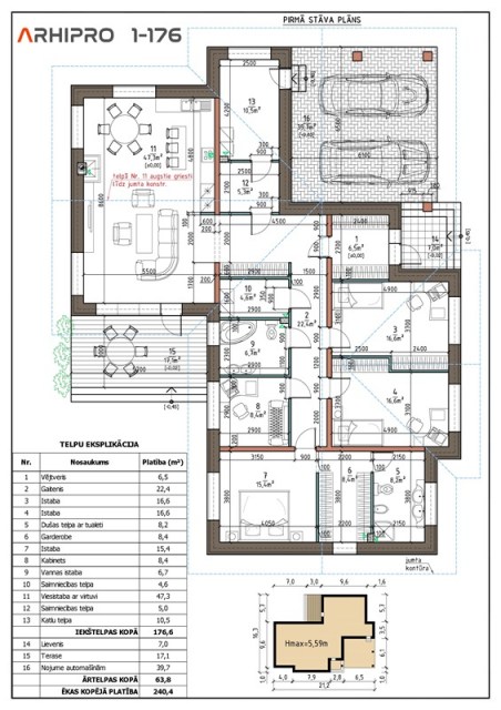
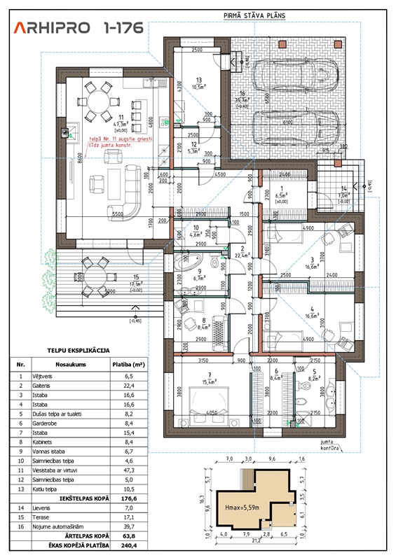
Guļamistabas: 3 Platība: 176 m² Garāža: nav


Email

Vienstāvīga ģimenes māja ar nojumi divām automašīnām un terasi. Mājā ir ieplānota plaša viesistaba apvienota ar virtuvi, šajā zonā paredzēti augstie griesti līdz jumta konstrukcijai, pārējā mājas daļā griestu augstums 2,80m. Pārējās telpas - trīs guļamistabas, kabinets, vannas istaba ar tualeti, kā arī saimniecības telpa un katlu telpa ar atsevišķu izeju. Saimnieku guļamistabā paredzēta atsevišķa garderobe un vannas istaba.

Iekštelpu platība – 176,6m²
Kopējā platība – 240,4m²

KONSTRUKTĪVĀS ĪPAŠĪBAS:
•Pamati – lentveida, no monolīta dz/b.
•Ēkas ārsienas – gāzbetona mūris BAUROC EcoLight 250mm, siltināts ar minerālvati PAROC Linio10 150mm, gaisa šķirkārta un apmūrēts ar apdares ķieģeli LODE Rudīte.
•Ēkas norobežojošās starpsienas – gāzbetona mūris BAUROC Acustic 100mm.
•Logi – pakešu logi koka vai PVC rāmjos ar trīskārša stiklojuma paketi.
•Pārsegumi – koka karkass, aizpildīts ar minerālvati
•Jumta konstrukcija – koka karkass.
•Jumta segums – betona dakstiņi.

Norādītajā tipveida projekta cenā ir iekļauta būvprojekta dokumentācija, kas sevī ietver ARHITEKTŪRAS (AR) sadaļu un BŪVKONSTRUKCIJU (BK) sadaļu. Papildus tam būs nepieciešams izstrādāt ĢENERĀLPLĀNU (ĢP) jeb piesaistīt māju pie zemes gabala, kas ir individuāls pakalpojums katram pasūtījumam. Jāņem vērā arī saistītie izdevumi ar inženiertehnisko izpēti zemes gabalam (topogrāfija, ģeoloģija), iespējamie pieslēgumi centralizētajiem inženierkomunikāciju tīkliem (ELT, UKT, GAT) un citi iespējamie izdevumi, kas katrā īpašumā var būt atšķirīgi. Lai noskaidrotu saistītās izmaksas lūgums sazināties ar arhitektu - tel. 201 44 444

Adrese: Nākotnes iela 2,
Ķekava, Ķekavas nov., LV-2123
© 2026 All Rights Reserved. Arhipro