1.222
1.345
1.475
1.533
1stav1

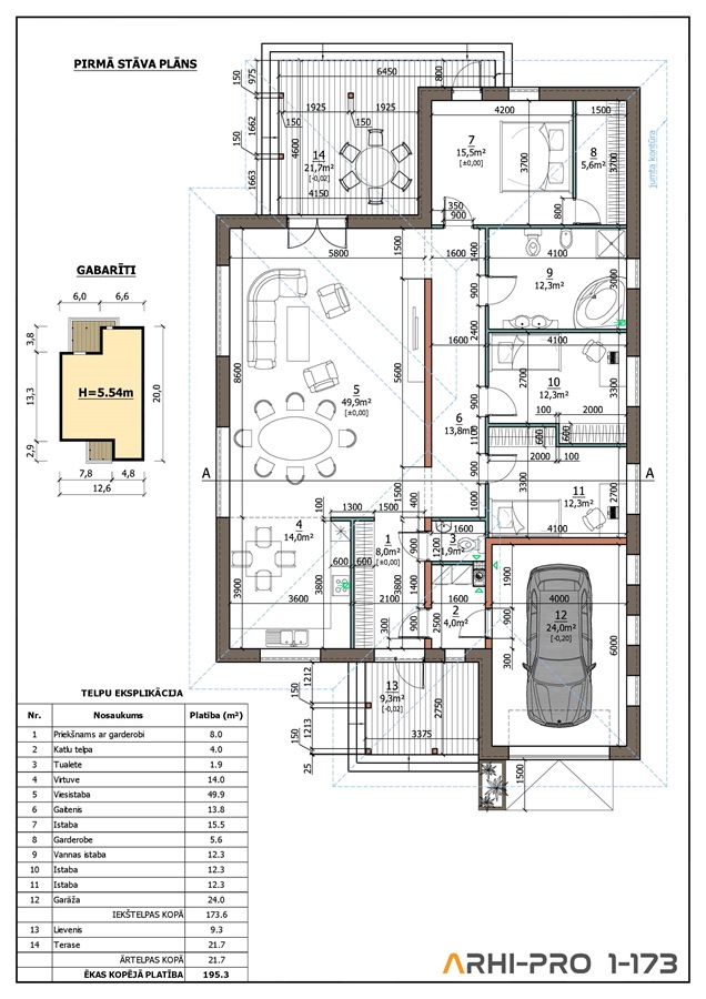
Mājas projekts Arhipro 1-173

Array

Projekta īss apraksts

Guļamistabas: 3 Platība: 173 m² Garāža: ir


Email

Klasiska stila māja, kas projektēta kā vienstāvīga ģimenes māja ar terasi un garāžu vienai automašīnai. Mājā ir ieplānota ļoti plaša viesistaba (49.9m²), kas apvienota ar virtuvi (14.0m²). Pārējās telpas - trīs guļamistabas (saimnieku istabai atsevišķa garderobe 5.6m²), vannas istaba ar tualeti, rezerves/viesu tualete un katlu telpa.

Iekštelpu platība – 173.6m²
Kopējā platība – 195.3m²

KONSTRUKTĪVĀS ĪPAŠĪBAS:

  • Pamati – lentveida, no monolīta dz/b uz monolītas dz/b pēdas.
  • Ēkas ārsienas – gāzbetona mūris BAUROC EcoTerm+ 300m, papildus siltināts ar fasāžu minerālvati PAROC Linio 10 – 100mm, un apmestas/krāsotas.
  • Ēkas norobežojošās starpsienas – gāzbetona mūris 100mm un 200mm.
  • Logi – pakešu logi koka vai PVC rāmjos ar trīskārša stiklojuma paketi.
  • Pārsegumi – koka siju karkass karkass, aizpildīts ar minerālvati.
  • Jumta konstrukcija – koka spāru karkass. 
  • Jumta segums – metāla profilētās loksnes - dakstiņprofils.

Norādītajā tipveida projekta cenā ir iekļauta būvprojekta dokumentācija, kas sevī ietver ARHITEKTŪRAS (AR) sadaļu un BŪVKONSTRUKCIJU (BK) sadaļu. Papildus tam būs nepieciešams izstrādāt ĢENERĀLPLĀNU (ĢP) jeb piesaistīt māju pie zemes gabala, kas ir individuāls pakalpojums katram pasūtījumam. Jāņem vērā arī saistītie izdevumi ar inženiertehnisko izpēti zemes gabalam (topogrāfija, ģeoloģija), iespējamie pieslēgumi centralizētajiem inženierkomunikāciju tīkliem (ELT, UKT, GAT) un citi iespējamie izdevumi, kas katrā īpašumā var būt atšķirīgi. Lai noskaidrotu saistītās izmaksas lūgums sazināties ar arhitektu - tel. 201 44 444


+371 20144444

info@arhipro.lv
Adrese: Nākotnes iela 2,
Ķekava, Ķekavas nov., LV-2123
© 2026 All Rights Reserved. Arhipro