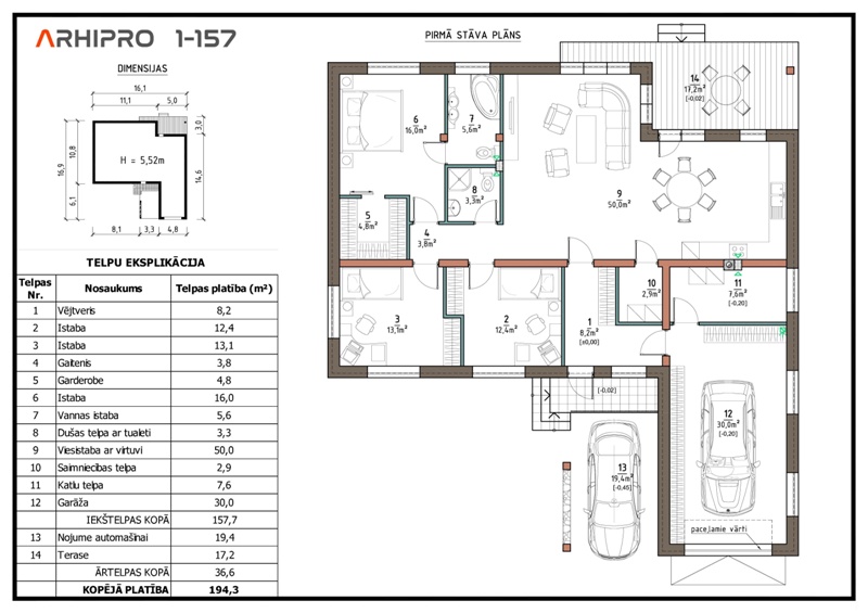
Guļamistabas: 3 Platība: 157 m² Garāža: ir
Vienstāvīga ģimenes māja ar terasi, garāžu un nojumi vienai automašīnai. Mājai pirmajā stāvā ir ieplānota plaša viesistaba kas apvienota ar virtuvi un ēdamzāli, unatsevišķu izeju uz terasi. Mājā kopumā ir trīs guļamistabas, divi sanmezgli, katlu telpa un saimniecības telpa. Vecāku guļamistabā ieplānota atsevišķa vannas istaba un garderobe.
Iekštelpu platība – 157,7m²
Kopējā platība – 194,3m²
KONSTRUKTĪVĀS ĪPAŠĪBAS:
•Pamati – plātņveida, no monolīta dz/b.
•Ēkas ārsienas – gāzbetona mūris 250mm. Ārsienas papildus siltinātas ar minerālvati 150mm.
•Ēkas norobežojošās starpsienas – metāla karkasa/ģipškartona konstrukcija, var aizstāt ar gāzbetona mūri 100mm.
•Logi – pakešu logi koka vai PVC rāmjos ar trīskārša stiklojuma paketi.
•Pārsegumi – koka karkass.
•Jumta konstrukcija – koka karkass.
•Jumta segums – metāla profilētās loksnes - valcprofils.
Norādītajā tipveida projekta cenā ir iekļauta būvprojekta dokumentācija, kas sevī ietver ARHITEKTŪRAS (AR) sadaļu un BŪVKONSTRUKCIJU (BK) sadaļu. Papildus tam būs nepieciešams izstrādāt ĢENERĀLPLĀNU (ĢP) jeb piesaistīt māju pie zemes gabala, kas ir individuāls pakalpojums katram pasūtījumam. Jāņem vērā arī saistītie izdevumi ar inženiertehnisko izpēti zemes gabalam (topogrāfija, ģeoloģija), iespējamie pieslēgumi centralizētajiem inženierkomunikāciju tīkliem (ELT, UKT, GAT) un citi iespējamie izdevumi, kas katrā īpašumā var būt atšķirīgi. Lai noskaidrotu saistītās izmaksas lūgums sazināties ar arhitektu - tel. 201 44 444