023
033
049
067
077
1.st54

Mājas projekts Arhipro 1-156

Array

Projekta īss apraksts

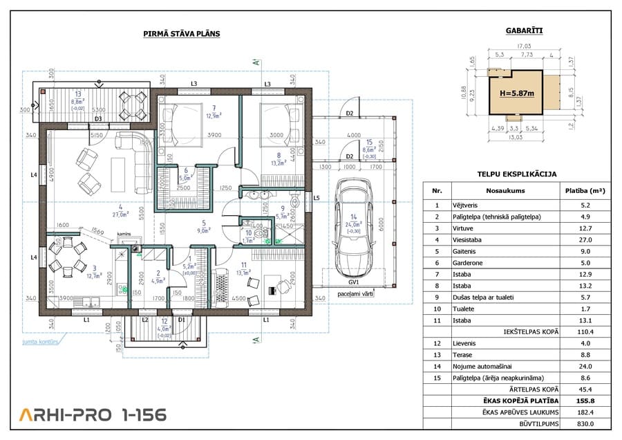
Guļamistabas: 3 Platība: 156 m² Garāža: ir 


Email

KONSTRUKTĪVĀS ĪPAŠĪBAS:

  • Pamati – plātņveida, no monolīta dz/b uz siltumizolācijas slāņa.

  • Ēkas ārsienas – koka karkass, aizpildīts ar minerālvati. Ārējā apdare no krāsotiem apdares dēļiem.

  • Ēkas norobežojošās starpsienas – koka karkasa/reģipša starpsienas 150mm, aizpildītas ar minerālvati.

  • Logi – pakešu logi koka vai PVC rāmjos ar trīskārša stiklojuma paketi.

  • Pārsegumi – rūpnieciski izgatavotu koka kopņu karkass, aizpildīts ar minerālvati.

  • Jumta konstrukcija – rūpnieciski izgatavotu koka kopņu karkass, aizpildīts ar minerālvati.

  • Jumta segums – metāla profilētās loksnes RUUKKI Adamante.

  • Apkure – siltumsūknis gaiss-ūdens, ar iebūvētām siltajām grīdām.

Norādītajā tipveida projekta cenā ir iekļauta būvprojekta dokumentācija, kas sevī ietver ARHITEKTŪRAS (AR) sadaļu un BŪVKONSTRUKCIJU (BK) sadaļu. Papildus tam būs nepieciešams izstrādāt ĢENERĀLPLĀNU (ĢP) jeb piesaistīt māju pie zemes gabala, kas ir individuāls pakalpojums katram pasūtījumam. Jāņem vērā arī saistītie izdevumi ar inženiertehnisko izpēti zemes gabalam (topogrāfija, ģeoloģija), iespējamie pieslēgumi centralizētajiem inženierkomunikāciju tīkliem (ELT, UKT, GAT) un citi iespējamie izdevumi, kas katrā īpašumā var būt atšķirīgi. Lai noskaidrotu saistītās izmaksas lūgums sazināties ar arhitektu - tel. 201 44 444

Adrese: Nākotnes iela 2,
Ķekava, Ķekavas nov., LV-2123
© 2026 All Rights Reserved. Arhipro