Fasāde1Fasāde1
Fasāde2Fasāde2
Fasāde3Fasāde3
Fasāde4Fasāde4
Fasāde5Fasāde5
Fasāde6Fasāde6

Mājas projekts Arhipro 1-121

Array

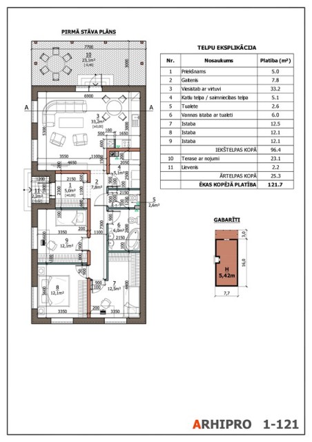
Projekta īss apraksts

Guļamistabas: 3 Platība: 121 m² Garāža: nav


Email

Kompakta vienstāvīga ģimenes māja, kas paredzēta ļoti šauram zemes gabalam (zemes gabala ielas fronte drīkst būt 15,7m bez kaimiņu saskaņojuma). Mājā ir ieplānota plaša studio tipa viesistaba apvienota ar virtuvi, trīs guļamistabas, vannas istaba un rezerves/viesu tualete, katlu telpa. Mājai paredzēta plaša terase zem jumta.

Iekštelpu platība – 96,4m²
Kopējā platība – 121,7m²

KONSTRUKTĪVĀS ĪPAŠĪBASS:
•Pamati – lentveida, no monolīta dz/b.
•Ēkas ārsienas – gāzbetona mūris BAUROC EcoTerm plus 300mm, siltināts ar minerālvati 100mm.
•Ēkas norobežojošās starpsienas – Gāzbetona mūris BAUROC Acustic 100mm.
•Logi – pakešu logi koka vai PVC rāmjos ar trīskārša stiklojuma paketi.
•Pārsegumi – koka karkass, aizpildīts ar minerālvati.
•Jumta konstrukcija – koka karkass. 
•Jumta segums – metāla profilētās loksnes - dakstiņprofils.
•Apkure – siltumsūknis gaiss-ūdens ar siltajām grīdām, kā arī kamīns viesistabā.

Norādītajā tipveida projekta cenā ir iekļauta būvprojekta dokumentācija, kas sevī ietver ARHITEKTŪRAS (AR) sadaļu un BŪVKONSTRUKCIJU (BK) sadaļu. Papildus tam būs nepieciešams izstrādāt ĢENERĀLPLĀNU (ĢP) jeb piesaistīt māju pie zemes gabala, kas ir individuāls pakalpojums katram pasūtījumam. Jāņem vērā arī saistītie izdevumi ar inženiertehnisko izpēti zemes gabalam (topogrāfija, ģeoloģija), iespējamie pieslēgumi centralizētajiem inženierkomunikāciju tīkliem (ELT, UKT, GAT) un citi iespējamie izdevumi, kas katrā īpašumā var būt atšķirīgi. Lai noskaidrotu saistītās izmaksas lūgums sazināties ar arhitektu - tel. 201 44 444


+371 20144444

info@arhipro.lv
Adrese: Nākotnes iela 2,
Ķekava, Ķekavas nov., LV-2123
© 2026 All Rights Reserved. Arhipro