Māju projekti
Vienstāvīgas Mājas
Divstāvīgas Mājas
Pakalpojumi
Individuālā projektēšana
Tipveida gatavie projekti
Dokumentu sakārtošana
Topogrāfiskā uzmērīšana
Ģeoloģiskā grunts izpēte
Inženierkomunikāciju projekti
Energoefektivitātes aprēķini
3D modelēšana
Būvniecība
Būvniecība
Būvdarbi
Inženierbūves
Zemes darbi
Atsauksmes
Kontakti
Visi projekti
Ar garāžu
Bez garāžas
Līdz 150 m2
no 150m2 līdz 200m2
Vairāk par 200m2
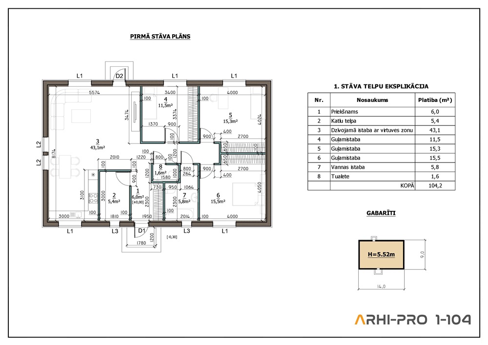
Mājas projekts Arhipro 1-104
Array
Projekta īss apraksts
Guļamistabas
:
3
Platība:
104 m²
Garāža:
nav
Atpakaļ uz: VIENSTĀVĪGAS MĀJAS
Mājas projekts Arhipro 1-106
Mājas projekts Arhipro 1-101b
Projekta pilns apraksts
KONSTRUKTĪVĀS ĪPAŠĪBAS:
Pamati – lentveida, no keramzītbetona bloku mūra (FIBO 5MPa) uz monolīta dz/b pēdas.
Ēkas ārsienas –
koka statņu karkass, aizpildīts ar minerālvati
.
Ēkas norobežojošās starpsienas - koka statņu karkass, aizpildīts ar minerālvati
.
Logi – pakešu logi koka vai PVC rāmjos ar trīskārša stiklojuma paketi.
Pārsegumi –
koka kopņu karkass, aizpildīts ar minerālvati
.
Jumta konstrukcija –
koka kopņu karkass.
Jumta segums –
profilētās metāla loksnes – RUUKKI Classic (valcprofila imitācija)
.
Apkure – siltumsūknis gaiss-ūdens, ar iebūvētām siltajām grīdām.
Māju projekti
Vienstāvīgas Mājas
Divstāvīgas Mājas
Pakalpojumi
Individuālā projektēšana
Tipveida gatavie projekti
Dokumentu sakārtošana
Topogrāfiskā uzmērīšana
Ģeoloģiskā grunts izpēte
Inženierkomunikāciju projekti
Energoefektivitātes aprēķini
3D modelēšana
Būvniecība
Būvniecība
Būvdarbi
Inženierbūves
Zemes darbi
Atsauksmes
Kontakti