Guļamistabas: 3 Platība: 101 m² Garāža: nav
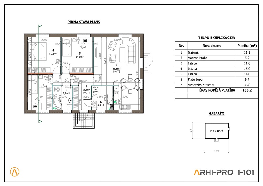
Ekonomiska mūra māja, kas projektēta kā vienstāvīga ģimenes māja. Mājā ir ieplānota viesistaba, kas apvienota ar virtuvi. Pārējās telpas - trīs guļamistabas, vannas istaba ar tualeti un katlu telpa.
Iekštelpu platība – 100.2m²
Kopējā platība – 100.2m²
KONSTRUKTĪVĀS ĪPAŠĪBAS:
Norādītajā tipveida projekta cenā ir iekļauta būvprojekta dokumentācija, kas sevī ietver ARHITEKTŪRAS (AR) sadaļu un BŪVKONSTRUKCIJU (BK) sadaļu. Papildus tam būs nepieciešams izstrādāt ĢENERĀLPLĀNU (ĢP) jeb piesaistīt māju pie zemes gabala, kas ir individuāls pakalpojums katram pasūtījumam. Jāņem vērā arī saistītie izdevumi ar inženiertehnisko izpēti zemes gabalam (topogrāfija, ģeoloģija), iespējamie pieslēgumi centralizētajiem inženierkomunikāciju tīkliem (ELT, UKT, GAT) un citi iespējamie izdevumi, kas katrā īpašumā var būt atšķirīgi. Lai noskaidrotu saistītās izmaksas lūgums sazināties ar arhitektu - tel. 201 44 444