Guļamistabas: 3 Platība: 103 m² Garāža: nav
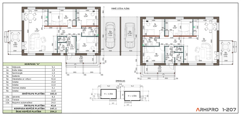
Dvīņu māja ar salīdzinoši kompaktu un simetrisku telpu plānojumu, korpusi savstarpēji atdalīti ar automašīnu nojumēm un ugunsdrošu sienu. Katrā dvīņu mājas korpusā ir ieplānota plaša viesistaba apvienota ar virtuves zonu, trīs guļamistabas, vannas istaba un papildus tualete, kā arī neliela tehniskā/katlu telpa. Katram korpusam ir sava automašīnas nojume, terase zem jumta un lievenis.
Iekštelpu platība katram korpusam – 103,5m²
Kopējā platība katram korpusam – 147,1m²
Iekštelpu platība kopā – 207,0m²
Ēkas kopējā platība – 294,2
KONSTRUKTĪVĀS ĪPAŠĪBAS:
• Pamati – lentveida, no saliekamiem dz/b blokiem uz saliekamas dz/b pēdas.
• Hidroizolācija – 2 kārtas ruberoīda bitumena mastikā.
• Ēkas ārsienas – gāzbetona mūris BAUROC EcoTerm 300mm. Ārsienas papildus siltinātas ar minerālvati 100mm.
• Ēkas norobežojošās starpsienas – metāla karkasa/ģipšakartona konstrukcija, var aizstāt ar gāzbetona mūri 100mm.
• Logi – pakešu logi koka vai PVC rāmjos ar trīskārša stiklojuma paketi.
• Pārsegumi – koka karkass, aizpildīts ar minerālvati.
• Jumta konstrukcija – koka karkass.
• Jumta segums – metāla profilētās loksnes - dakstiņprofils.
Norādītajā tipveida projekta cenā ir iekļauta būvprojekta dokumentācija, kas sevī ietver ARHITEKTŪRAS (AR) sadaļu un BŪVKONSTRUKCIJU (BK) sadaļu. Papildus tam būs nepieciešams izstrādāt ĢENERĀLPLĀNU (ĢP) jeb piesaistīt māju pie zemes gabala, kas ir individuāls pakalpojums katram pasūtījumam. Jāņem vērā arī saistītie izdevumi ar inženiertehnisko izpēti zemes gabalam (topogrāfija, ģeoloģija), iespējamie pieslēgumi centralizētajiem inženierkomunikāciju tīkliem (ELT, UKT, GAT) un citi iespējamie izdevumi, kas katrā īpašumā var būt atšķirīgi. Lai noskaidrotu saistītās izmaksas lūgums sazināties ar arhitektu - tel. 201 44 444