26
365
48
547
1stav7
2stav

Mājas projekts Arhipro 2-133

Array

Projekta īss apraksts

Guļamistabas: 3 Platība: 133 m² Garāža: nav


Email

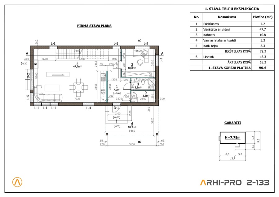
Koka karkasa māja divos stāvos. Māja plānota kā divstāvīga ģimenes māja, mājas pirmajā stāvā ir ieplānota plaša viesistaba, kas apvienota ar virtuvi, kabinets, dušas telpa ar tualeti un katlu telpa. Otrajā stāvā divas guļamistabas un dušas telpa ar tualei, saimnieku guļamistabā atsevišķa garderobe.

Iekštelpu platība – 115.3m²
Kopējā platība – 133.6m²

KONSTRUKTĪVĀS ĪPAŠĪBAS:

  • Pamati – lentveida no keramzītbetona blokiem (5Mpa) uz monolītas dz/b pēdas.
  • Ēkas ārsienas – koka statņu karkass, ar kopējo siltumizolācijas slāni 250mm, ārējā apdare – apdares dēļi un krāsots apmetums.
  • Ēkas norobežojošās starpsienas – koka statņu karkass, aizpildīts ar minerālvati.
  • Logi – pakešu logi koka vai PVC rāmjos ar trīskārša stiklojuma paketi.
  • Pārsegumi – koka siju karkass karkass, aizpildīts ar minerālvati.
  • Jumta konstrukcija – koka spāru karkass, aizpildīts ar minerālvati. 
  • Jumta segums – bitumena ruļļmateriāli un metāla profilētās loksnes.

Norādītajā tipveida projekta cenā ir iekļauta būvprojekta dokumentācija, kas sevī ietver ARHITEKTŪRAS (AR) sadaļu un BŪVKONSTRUKCIJU (BK) sadaļu. Papildus tam būs nepieciešams izstrādāt ĢENERĀLPLĀNU (ĢP) jeb piesaistīt māju pie zemes gabala, kas ir individuāls pakalpojums katram pasūtījumam. Jāņem vērā arī saistītie izdevumi ar inženiertehnisko izpēti zemes gabalam (topogrāfija, ģeoloģija), iespējamie pieslēgumi centralizētajiem inženierkomunikāciju tīkliem (ELT, UKT, GAT) un citi iespējamie izdevumi, kas katrā īpašumā var būt atšķirīgi. Lai noskaidrotu saistītās izmaksas lūgums sazināties ar arhitektu - tel. 201 44 444


+371 20144444

info@arhipro.lv
Adrese: Nākotnes iela 2,
Ķekava, Ķekavas nov., LV-2123
© 2026 All Rights Reserved. Arhipro