222
369
49
597
1stav32

Mājas projekts Arhipro 1-126

Array

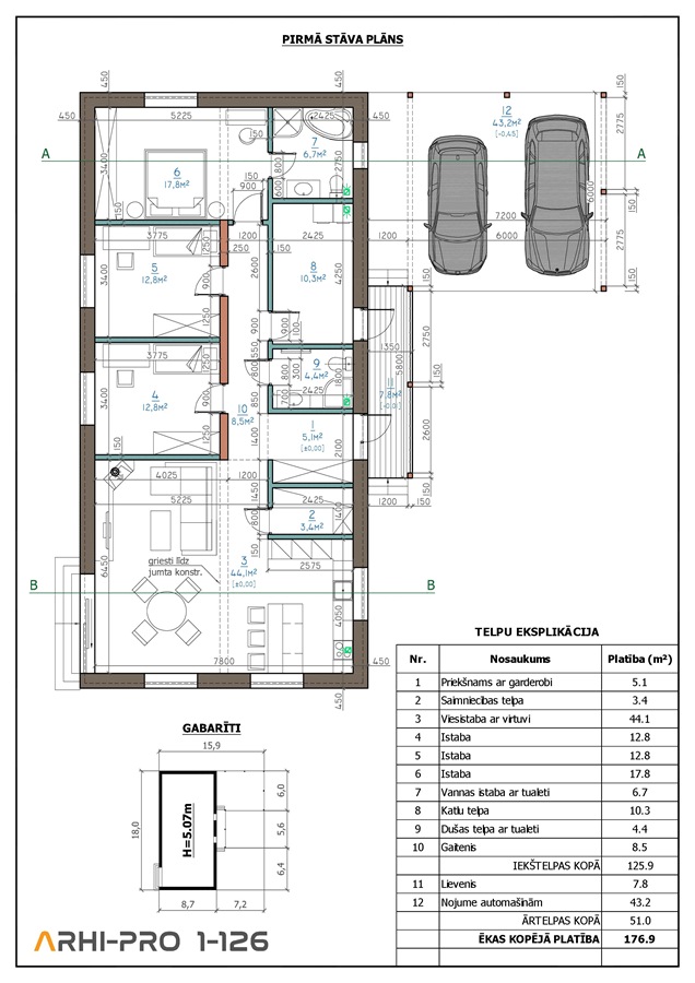
Projekta īss apraksts

Guļamistabas: 3 Platība: 126 m² Garāža: nav


Email

Mūra māja ar ventilējamo fasādi, kas projektēta kā vienstāvīga ģimenes māja ar plašu nojumi divām automašīnām. Mājā ir ieplānota plaša viesistaba (44.1m²), kas apvienota ar virtuvi, šajā telpā paredzēti augstie griesi līdz jumta konstrukcijai. Pārējās telpas - trīs guļamistabas (saimnieku istabai atsevišķa vannas istaba), dušas telpa ar tualeti, pieliekamais un katlu telpa.

Iekštelpu platība – 125.9m²
Kopējā platība – 176.9m²

KONSTRUKTĪVĀS ĪPAŠĪBAS:

  • Pamati – lentveida, no saliekamiem dz/b blokiem (FBS) uz monolītas dz/b pēdas.
  • Ēkas ārsienas – gāzbetona mūris BAUROC EcoTerm+ 300m, papildus siltināts ar  minerālvati – 100mm, ar vedināmo fasādi. Ārējā apdare – krāsoti apdares dēļi.
  • Ēkas norobežojošās starpsienas – gāzbetona mūris 150mm un 250mm.
  • Logi – pakešu logi koka vai PVC rāmjos ar trīskārša stiklojuma paketi.
  • Pārsegumi – koka siju karkass karkass, aizpildīts ar minerālvati.
  • Jumta konstrukcija – koka spāru karkass, aizpildīts ar minerālvati. 
  • Jumta segums – betona dakstiņi.

Norādītajā tipveida projekta cenā ir iekļauta būvprojekta dokumentācija, kas sevī ietver ARHITEKTŪRAS (AR) sadaļu un BŪVKONSTRUKCIJU (BK) sadaļu. Papildus tam būs nepieciešams izstrādāt ĢENERĀLPLĀNU (ĢP) jeb piesaistīt māju pie zemes gabala, kas ir individuāls pakalpojums katram pasūtījumam. Jāņem vērā arī saistītie izdevumi ar inženiertehnisko izpēti zemes gabalam (topogrāfija, ģeoloģija), iespējamie pieslēgumi centralizētajiem inženierkomunikāciju tīkliem (ELT, UKT, GAT) un citi iespējamie izdevumi, kas katrā īpašumā var būt atšķirīgi. Lai noskaidrotu saistītās izmaksas lūgums sazināties ar arhitektu - tel. 201 44 444

Adrese: Nākotnes iela 2,
Ķekava, Ķekavas nov., LV-2123
© 2026 All Rights Reserved. Arhipro