Māju projekti
Vienstāvīgas Mājas
Divstāvīgas Mājas
Pakalpojumi
Individuālā projektēšana
Tipveida gatavie projekti
Dokumentu sakārtošana
Topogrāfiskā uzmērīšana
Ģeoloģiskā grunts izpēte
Inženierkomunikāciju projekti
Energoefektivitātes aprēķini
3D modelēšana
Būvniecība
Būvniecība
Būvdarbi
Inženierbūves
Zemes darbi
Atsauksmes
Kontakti
Visi projekti
Ar garāžu
Bez garāžas
Līdz 150 m2
no 150m2 līdz 200m2
Vairāk par 200m2
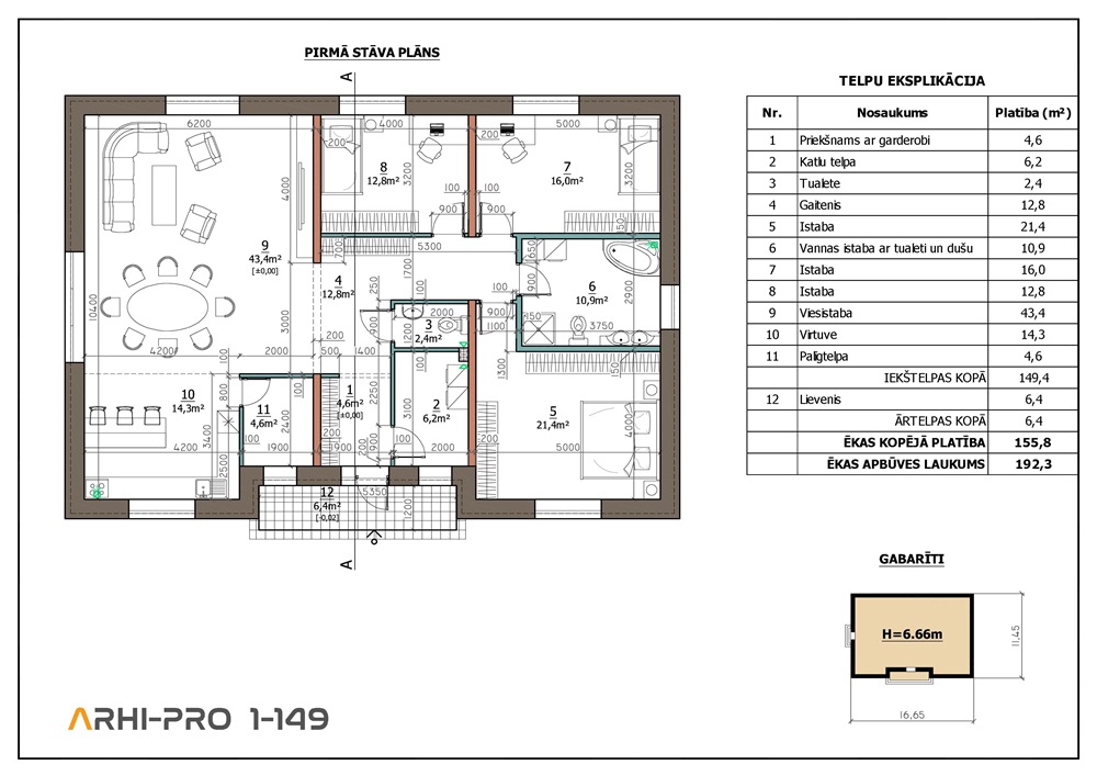
Mājas projekts Arhipro 1-149
Array
Projekta īss apraksts
Guļamistabas
:
3
Platība:
149 m²
Garāža:
nav
Uzdot jautājumu par projektu
Atpakaļ uz: BEZ GARĀŽAS
Mājas projekts Arhipro 1-154
Mājas projekts Arhi-Pro 1-151
Projekta pilns apraksts
KONSTRUKTĪVĀS ĪPAŠĪBAS:
Pamati – lentveida, no monolīta dz/b uz monolīta dz/b pēdas.
Ēkas ārsienas –
gāzbetona mūris BAUROC EcoTerm+ 375mm (300kg/m³). Ārsienas papildus siltinātas ar fasāžu cieto minerālvati 150mm
.
Ēkas norobežojošās starpsienas - gāzbetona mūris BAUROC Acoustic 100/150mm, ar pazeminātu akustisko caurlaidību
.
Logi – pakešu logi koka vai PVC rāmjos ar trīskārša stiklojuma paketi.
Pārsegumi –
koka siju karkass, aizpildīts ar minerālvati
.
Jumta konstrukcija –
koka spāru karkass.
Jumta segums –
profilētās metāla loksnes - dakstiņprofils
.
Apkure – siltumsūknis gaiss-ūdens, ar iebūvētām siltajām grīdām.
Māju projekti
Vienstāvīgas Mājas
Divstāvīgas Mājas
Pakalpojumi
Individuālā projektēšana
Tipveida gatavie projekti
Dokumentu sakārtošana
Topogrāfiskā uzmērīšana
Ģeoloģiskā grunts izpēte
Inženierkomunikāciju projekti
Energoefektivitātes aprēķini
3D modelēšana
Būvniecība
Būvniecība
Būvdarbi
Inženierbūves
Zemes darbi
Atsauksmes
Kontakti