fas (2)1
fas (3)6
fas (4)4
fas (5)8
fas (6)8
1.st82

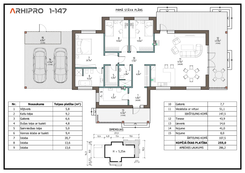
Mājas projekts Arhipro 1-147

Array

Projekta īss apraksts

Guļamistabas: 3 Platība: 147 m² Garāža: nav


Email

Vienstāvīga ģimenes māja ar plašu terasi, un nojumi divām automašīnām ar nelielu saimniecības telpu zem tās. Mājai pirmajā stāvā ir ieplānota plaša viesistaba kas apvienota ar virtuvi un ēdamzāli, un divām atsevišķām izejām uz terasi. Mājā kopumā ir trīs guļamistabas, divi sanmezgli un katlu telpa. Vecāku guļamistabā ieplānota atsevišķa vannas istaba un garderobe.

Iekštelpu platība – 147,5m²
Kopējā platība – 255,0m²

KONSTRUKTĪVĀS ĪPAŠĪBAS:
•Pamati – lentveida, no monolīta dz/b.
•Ēkas ārsienas – gāzbetona mūris 250mm. Ārsienas papildus siltinātas ar minerālvati 150mm.
•Ēkas norobežojošās starpsienas – metāla karkasa/ģipškartona konstrukcija, var aizstāt ar gāzbetona mūri 100mm.
•Logi – pakešu logi koka vai PVC rāmjos ar trīskārša stiklojuma paketi.
•Pārsegumi – koka kopņu karkass.
•Jumta konstrukcija – koka kopņu karkass.
•Jumta segums – metāla profilētās loksnes - valcprofils.

Norādītajā tipveida projekta cenā ir iekļauta būvprojekta dokumentācija, kas sevī ietver ARHITEKTŪRAS (AR) sadaļu un BŪVKONSTRUKCIJU (BK) sadaļu. Papildus tam būs nepieciešams izstrādāt ĢENERĀLPLĀNU (ĢP) jeb piesaistīt māju pie zemes gabala, kas ir individuāls pakalpojums katram pasūtījumam. Jāņem vērā arī saistītie izdevumi ar inženiertehnisko izpēti zemes gabalam (topogrāfija, ģeoloģija), iespējamie pieslēgumi centralizētajiem inženierkomunikāciju tīkliem (ELT, UKT, GAT) un citi iespējamie izdevumi, kas katrā īpašumā var būt atšķirīgi. Lai noskaidrotu saistītās izmaksas lūgums sazināties ar arhitektu - tel. 201 44 444

Adrese: Nākotnes iela 2,
Ķekava, Ķekavas nov., LV-2123
© 2026 All Rights Reserved. Arhipro