Fasade5Fasade5
Fasade5Fasade5
Fasade5Fasade5
Fasade5Fasade5
Fasade5Fasade5
Fasade5Fasade5

Mājas projekts Arhipro 1-142

Array

Projekta īss apraksts

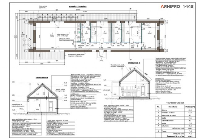
Guļamistabas: 2 Platība: 144 m² Garāža: nav 


Email

Vienstāvīga ģimenes māja ar terasi, mājas dizains pietuvināts mūsdienu Skandināvu arhitektūras stilam. Mājā ir ieplānota ļoti plaša (52,9m²) viesistaba apvienota ar virtuvi, šajā zonā paredzēti augstie griesti līdz jumta konstrukcijai, kas šo telpu padarīs telpiski ļoti brīvu un atvērtu moderniem interjera risinājumiem. Pārējā mājas daļā griestu augstums 2,76m, šinī mājas daļā izveidojas plašs lofts ko var brīvi izmantot pēc saviem uzskatiem, vai arī perspektīvē izbūvēt pilnvērtīgu mansarda stāvu. Pārējās telpas – divas guļamistabas, garderobe, vannas istaba ar tualeti, kā arī saimniecības telpa un katlu telpa ar atsevišķu ieeju.

Iekštelpu platība – 144,7m²
Kopējā platība – 216,3m²

KONSTRUKTĪVĀS ĪPAŠĪBAS:
•Pamati – plātņveida, no monolīta dz/b.
•Ēkas ārsienas – gāzbetona mūris BAUROC EcoTerm 300mm, siltināts ar minerālvati 100mm, gaisa vēdināmā šķirkārta un apšūts ar apdares dēļiem - vertikāli.
•Ēkas norobežojošās starpsienas – gāzbetona mūris BAUROC Acustic 100mm.
•Logi – pakešu logi koka vai PVC rāmjos ar trīskārša stiklojuma paketi.
•Pārsegumi – koka karkass, aizpildīts ar minerālvati.
•Jumta konstrukcija – koka karkass, aizpildīts ar minerālvati .
•Jumta segums – metāla valcprofils vai profilētās metāla loksnes Ruukki Classic.

Norādītajā tipveida projekta cenā ir iekļauta būvprojekta dokumentācija, kas sevī ietver ARHITEKTŪRAS (AR) sadaļu un BŪVKONSTRUKCIJU (BK) sadaļu. Papildus tam būs nepieciešams izstrādāt ĢENERĀLPLĀNU (ĢP) jeb piesaistīt māju pie zemes gabala, kas ir individuāls pakalpojums katram pasūtījumam. Jāņem vērā arī saistītie izdevumi ar inženiertehnisko izpēti zemes gabalam (topogrāfija, ģeoloģija), iespējamie pieslēgumi centralizētajiem inženierkomunikāciju tīkliem (ELT, UKT, GAT) un citi iespējamie izdevumi, kas katrā īpašumā var būt atšķirīgi. Lai noskaidrotu saistītās izmaksas lūgums sazināties ar arhitektu - tel. 201 44 444

Adrese: Nākotnes iela 2,
Ķekava, Ķekavas nov., LV-2123
© 2026 All Rights Reserved. Arhipro